Esmeralda Condo at Sosua Ocean Village
Desde $150,000 USD
57000 Puerto Plata, Dominican Republic
Listos para entrega
Desde $63,150 USD










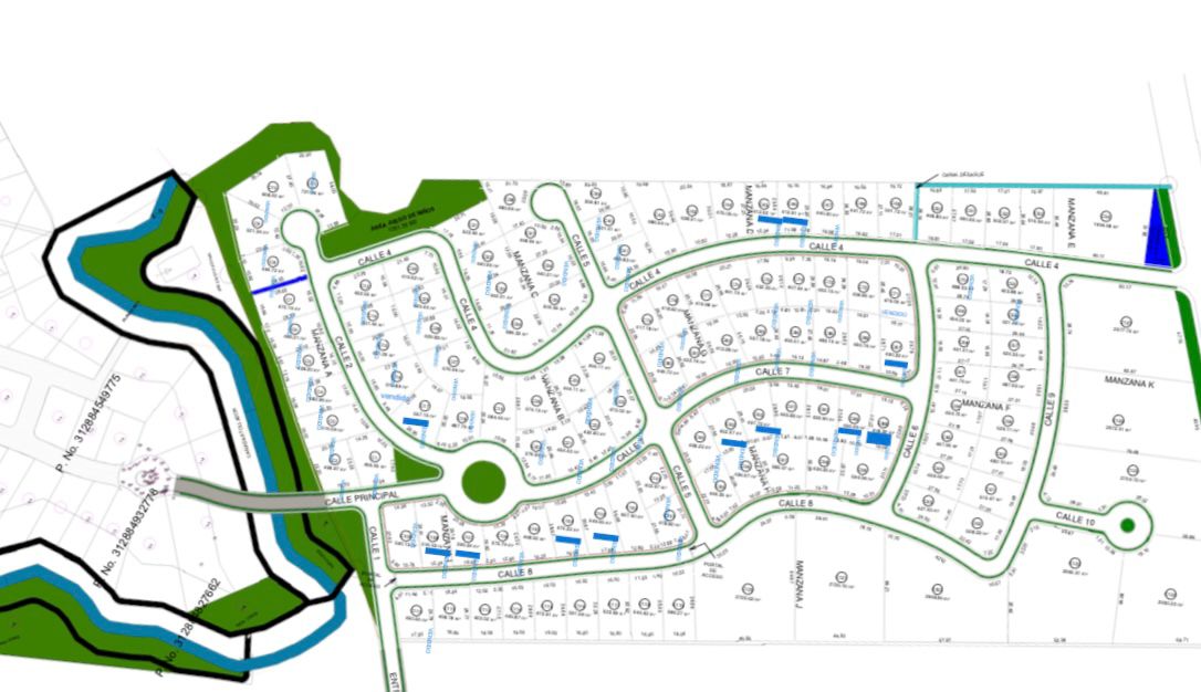
Un nuevo e innovador proyecto residencial eco-amigable que consta de ciento ochenta y cinco mil metros cuadrados. Rodeado de exuberante vegetación, árboles centenarios y un pequeño arroyo que corre a lo largo de la propiedad Plantation es el lugar idílico para vivir. Diseñado para esas personas que aman la tranquilidad de la naturaleza y disfrutan de las actividades al aire libre.
Estratégicamente ubicado a pocos minutos del centro de Puerto Plata y adyacente al complejo de Playa Dorada. El promedio de los tamaños de cada solar ronda desde los 421 metros hasta los 600 metros. Sin embargo, tambien hay lotes de solares disponibles que van desde los 1,694 metros hasta los 2,965 metros cuadrados.
Características de la urbanización:
Precio por metro: 150 US$
Facilidad de pago: